Novecento

UNA RISTRUTTURAZIONE COMPLETA PER L’ULTIMO PIANO DI UNA VILLA NOVECENTESCA CON INGRESSO DA TORRE PRIVATA E UNA GRANDE TERRAZZA VISTA MARE. ARCHI, NICCHIE E DETTAGLI ARCHITETTONICI SONO VALORIZZATI DA UN DESIGN DEGLI INTERNI CONTEMPORANEO.

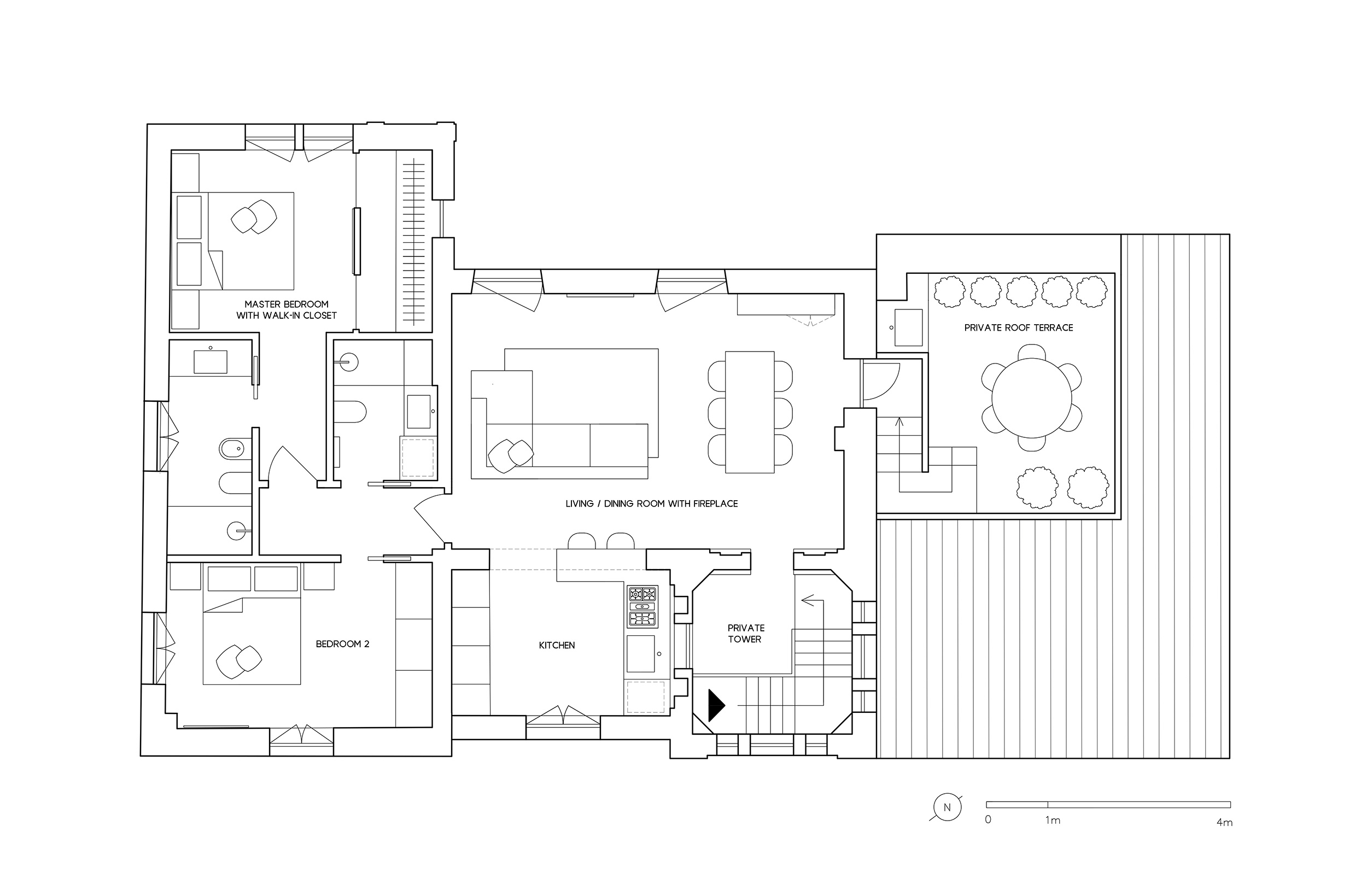
La ristrutturazione degli interni apre lo spazio alla luce naturale: grandi finestre sui quattro lati incorniciano la vista mozzafiato a 180 gradi verso il mare e verso il castello, cuore del borgo medioevale toscano.

WHAT WE DID

PROGETTO DI RISTRUTTURAZIONE
INTERIOR DESIGN

Il layout distributivo colloca il living e la zona pranzo fronte mare. Data la conformazione del tetto a spiovente, un sistema di fissaggio a parete consente la sospensione delle luci sul tavolo.

L’antico passaggio tra torre e cucina, restaurato e chiuso da un vetro, è oggi una raffinata finestra che incornicia la zona cottura. Ai lati mensole in vetro illuminate da led sono a sevizio del piano lavoro.

Il design su misura della zona cottura, con cappa integrata nel piano, consente lo sviluppo di una penisola con sgabelli.

Nella torre una scala collega l’ingresso al piano nobile. L’architettura delle nicchie con finestre è valorizzata da un cambio delicato di colore a parete. Un sistema di luci a binario illumina la volta e l’atrio arredato con pouff.

Camera padronale con cabina armadio e bagno.

Nella zona notte la camera padronale ha un’ampia cabina armadio con porte in vetro bronzato e profili in metallo satinato.

Il parquet in rovere è posato a spina senza soluzione di continuità in tutto l’appartamento.

Bagno ospiti

Il piccolo bagno per gli ospiti di pianta quadrata è arredato in stile contemporaneo.

Finiture di alta qualità, rivestimenti di grande formato e arredo su misura ne fanno un piccolo gioiello.

A parete sono ricavate comode mensole a servizio della zona lavabo e dell’interno doccia con parete in marmo a venatura dorata.

Bagno padronale

Il bagno padronale, in linea con lo stile di tutta la casa, ha un arredo essenziale ed elegante: doppio cassettone con piano in corian e lavabo integrato.

La grande specchiera retroilluminata consente di amplificare lo spazio.

Come per il bagno ospiti una lastra di grande formato in marmo a venatura dorata riveste la parete di fondo della doccia. Una resina dai colori tenui riveste le altre pareti per un effetto sobrio ed elegante.